案例警示 | 经营性自建房火灾致3人死亡,14名干部被问责
2024年4月15日2时29分许
潮州市饶平县三饶镇南新村
一自建房发生火灾
造成3人死亡
日前,潮州市政府批复了潮州市饶平县三饶镇“4·15”较大火灾事故调查报告,认定潮州市饶平县三饶镇“4·15”较大火灾事故是一起生产安全责任事故。
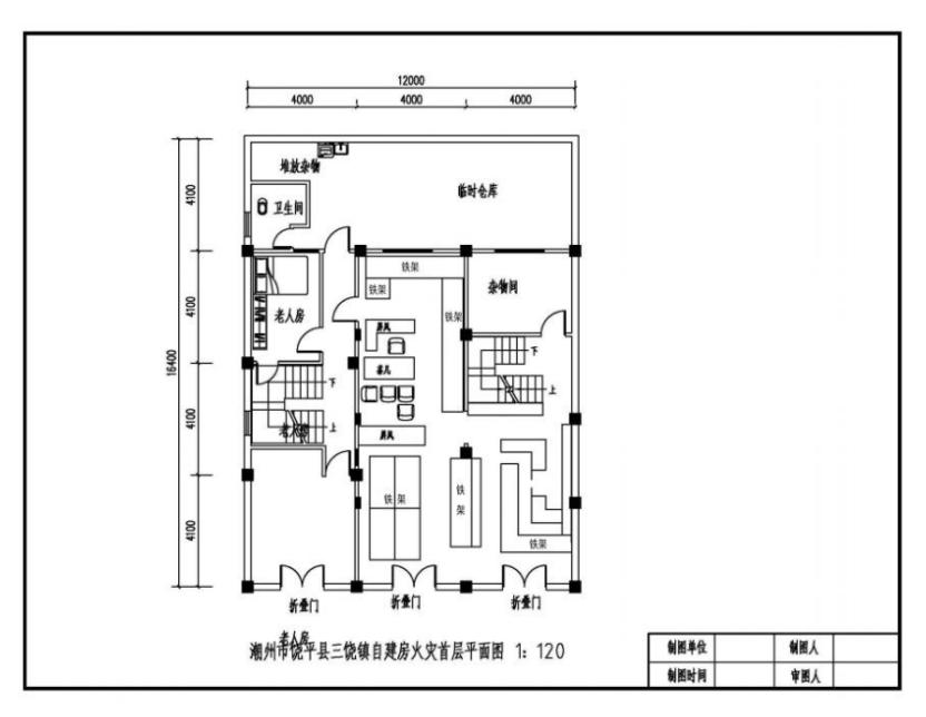
着火建筑及场所基本情况起火建筑位于潮州市饶平县三饶镇南新村西平路 485号,建筑主体为3层钢筋混凝土结构,坐东朝西,南北两侧贴邻村民自建房,西侧为西平路,东侧为水沟及山地。该建筑单层面积约 160 平方米,总建筑面积约 480 平方米。首层为自主经营的五金店,第二、三层为居住用。
▲现场方位图
▲起火建筑概貌
▲现场平面图起火建筑首层堆放大量可燃物品增加了火灾荷载,着火产生大量有毒烟气令人窒息死亡。加之起火建筑仅在首层经营区域配备灭火器、独立式烟感报警器,二楼以上居住楼层内没有配备灭火器、简易防毒面具等基本的灭火逃生器材,且只在二层客厅处开设1个逃生窗并上锁,其它房间、其它楼层设置的防盗网均未开设逃生窗,业主无法第一时间实施自救和快速逃生。
事故发生经过
2024年4月15日2时50分许,潮州市消防救援支队指挥中心接到报警:潮州市饶平县三饶镇一自建房起火。
2时58分首战力量三饶镇专职消防队到达现场立即开展救援,樟溪消防救援站、新塘专职消防队、黄冈消防救援站先后到达现场开展救援,
3时18分基本控制火势。现场救出被困人员4人,除张**(陈**的婆婆)外,其余3人均第一时间送往医院救治,后经医院救治无效死亡。
事故原因
直接原因:起火原因为陈**个人自建房首层中部茶几东面铁架底部隔板上的电子设备(自用电器,非销售货物)内置的18650锂电池热失控自燃,引燃周边可燃物蔓延成灾。
间接原因:一是涉事房主、经营者安全意识淡薄。涉事房主、经营者缺乏基本的消防安全意识,违规在经营性场所内设置住宅,且未与经营、存储位置进行物理分隔,为后续火灾发生和人员伤亡埋下隐患。
二是属地监管责任缺位,隐患排查整治和宣传教育工作不力。三饶镇、南新村委会未认真落实消防安全网格化管理制度,网格人员对经营性自建房安全检查的重点把握不准,未能对“有无存在‘三合一’问题”进行精准辨识。
三是部门监管联动不足,未有效指导属地工作落实。三饶派出所未认真开展日常消防监督检查和消防宣传教育工作,指导村(居)委会履行消防安全职责存在不足,未有效提升群众的安全防范意识,日常消防监督检查和消防宣传教育工作不到位。
四是基层救援力量建设不到位。三饶镇政府专职消防队、南新村微型消防站履职缺失,基层监督管理不到位、重视不够、投入不足,基层消防救援力量亟需进一步强化,打早灭小能力还有待进一步提高。
人员死亡分析
1、火灾荷载大,产生大量有毒烟气。自建房首层起火部位处存放了大量的杂物、生活用品等,火灾荷载大,火灾产生大量高温浓烟毒气迅速蔓延导致人员窒息死亡。
2、火灾发生时间是住宅亡人火灾高发时间段。本次火灾发生在凌晨2时29分许,是人体生理上第二次深度睡眠周期,火灾发生时,二层3名被困人员正处于熟睡中,当发现发生火灾时,火势已处于猛烈燃烧阶段,错失了最佳的逃生时机。
3、缺乏基本的逃生自救常识。起火建筑为村民自建住宅、钢筋混泥土结构,内部有疏散楼梯,首层起火后,火灾产生的高温浓烟顺楼梯向上蔓延,封堵逃生通道,二层迅速形成高浓度的烟雾环境,加之被困人员缺乏逃生自救的基本常识,未向逃生窗处进行逃生自救,造成在二层被困的3人(2个大人和1个小孩)吸入过多的有毒高温烟气无法逃生。
对事故有关单位及责任人的处理
潮州市纪委监委责成饶平县人民政府向潮州市人民政府作出深刻书面检查;责成三饶镇单位、政府向饶平县委、县政府作出深刻书面检查,认真汲取事故教训,深刻检视问题并落实整改,整改落实情况及时向饶平县委、县政府报告;责成三饶派出所向饶平县公安局作出深刻书面检查。各级纪检监察部门按干部管理权限对14名党员、公职人员予以问责。
店铺对外经营
搭建夹层住人
“下店上宅、前店后宅”
这样的“三合一”场所
在沿街铺面最为常见
而这些看似平平无奇的商铺
为何会是火灾“频繁光顾”的地方?
↓↓↓
Q
什么是“三合一”场所?
“三合一”场所是指将住宿与生产、储存、经营一种或几种用途混合设置在同一连通空间内,且未进行有效防火、分割的场所。


Q“三合一”场所火灾易发的原因
小商铺内一般存放着大量易燃物品,不注意保持适当间距,火源、电源管理不到位,疏散通道不通畅,更有甚者,为了经营方便而私拉乱接电线,或同时使用多台大功率用电设备,为火灾的发生埋下了伏笔。
一些商铺在装修过程中,使用了大量易燃可燃材料,进行吊顶和分隔,这些材料一旦被引燃,会产生大量有毒烟气,影响人员逃生自救。
一些商铺会通过增设夹层、隔间等方式,将住宿生产、仓储、经营场所设置在同一建筑内,加之人员缺乏基本的逃生常识,在火灾面前难以准确快速自救,导致了悲剧的发生。天津消防提醒您
沿街店铺、“三合一”场所带来的消防安全隐患不容忽视
各位经营者们
一定要加强隐患排查
做到防患于未“燃”
↓↓↓
短视频推荐▌标题:案例警示 | 经营性自建房火灾致3人死亡,14名干部被问责
▌制作:天津市消防救援总队
继续滑动看下一个轻触阅读原文
天津消防向上滑动看下一个原标题:《案例警示 | 经营性自建房火灾致3人死亡,14名干部被问责》

