江西一地重大发现!
2月26日,2021年度全国十大考古新发现初评结果揭晓 ! 根据投票结果,得票数前20位的项目入围2021年度全国十大考古新发现终评。樟树市国字山战国墓葬位列其中!
2021年度全国十大考古新发现
入围终评项目名单
(以时代早晚为序)
1 四川稻城皮洛遗址
2 山西夏县师村遗址
3 甘肃张家川圪垯川遗址
4 河南南阳黄山遗址
5 湖南澧县鸡叫城遗址
6 浙江余姚施岙遗址
7 山东滕州岗上遗址
8 四川广汉三星堆遗址祭祀区
9 陕西宝鸡周原遗址
10 浙江衢江西周高等级土墩墓群
11 山西垣曲北白鹅墓地
12 江西樟树国字山战国墓葬
13 湖北云梦郑家湖墓地
14 陕西西安江村大墓
15 甘肃武威唐代吐谷浑王族墓葬群
16 西藏拉萨当雄墓地
17 新疆尉犁克亚克库都克烽燧遗址
18 河北正定开元寺南遗址
19 黑龙江阿城金上京遗址
20 安徽凤阳明中都遗址
樟树国字山战国墓葬
戳视频了解樟树国字山墓葬概况
早前,在宜春樟树市,考古人员发现了一座东周时期的高等级墓藏,这座墓葬的发掘已经持续了四年多。
筑卫城城址与国字山墓葬去年12月25日下午,经国家文物局、北京大学、中国社会科学院考古研究所、陕西省考古研究院等30多位专家共同对樟树市国字山越王室大墓考古发掘成果进行论证,首次对外公布——
国字山墓葬是迄今江西地区考古发现规模最大的东周时期墓葬,国字山墓葬的发掘是越国与越文化考古的新突破,对于研究越国历史有着重要的学术意义!

根据出土遗物等推断,墓葬时代在战国中期。国字山墓葬是迄今江西地区考古发现规模最大的东周时期墓葬。墓主有着很高的身份地位,推测是越国王室贵族。
国字山墓葬位于宜春市樟树市大桥街道彭泽村洪光塘西南,筑卫城城址西侧约300米处的小山顶部。筑卫城是清江盆地东周时期的中心性城址。城址周边发现大量同时期的城址、遗址、墓葬等,构成了以筑卫城为核心的聚落群。自2017年起,在国家文物局的支持下,江西省文物考古研究院、中国社会科学院考古研究所和樟树市博物馆组成的国字山考古队以聚落考古的理念对墓葬及周边地区开展了持续性考古发掘和研究工作。

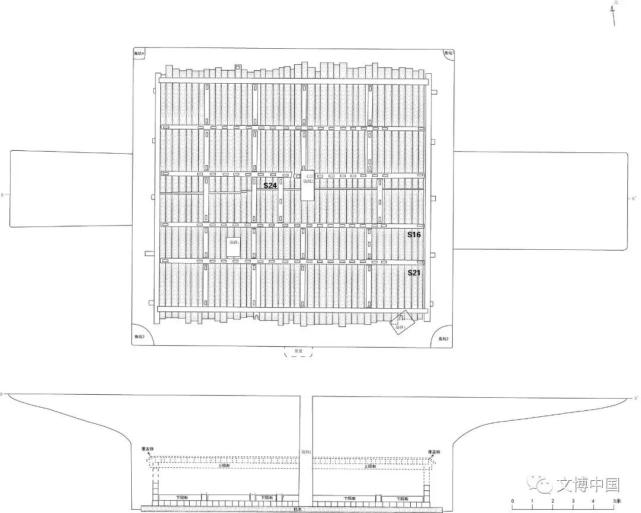
M1墓主棺及陪葬棺
墓葬是东西向中字形竖穴土坑墓。墓葬周边有近长方形围沟环绕。墓室东西长约16米,南北宽约14.4米。椁室呈长方形箱体,由下方的垫木、底板,周边的侧板和盖板组成。椁室各部位均使用楠木。椁盖板上有金黄色木皮覆盖。椁室内由隔断和立柱分隔成井然有序的25个分室。椁室内放置7具棺木。其中主棺是船形独木棺,位于椁室中部,另6具陪葬棺分置于周边分室内。
国字山墓葬平剖面图墓葬虽经早期盗扰,在各分室内仍出土有2600余件套器物,攘括了礼器、乐器、兵器、车马器、日常用具等种类。墓内还出两件与“越王者翳”有关的带铭铜戈。
出土的铜鼎
铜提梁盉
两件铜盉
瑟礼器中筝保存很好,总长度达到2.3米,是先秦时期发现的最长的一件筝。
国字山墓出土 筝最为重要的是墓内出土的两件有铭铜戈(戟)。经专家考证,铭文分别是“者殹自乍用戟”和“於戉台王旨殹之大子不(?)寿自乍元用矛”。器主分别为越王勾践的玄孙翳(公元前410~前375年)和翳的一个儿子不(?)寿。
不寿戈(戟)
者殹戈(戟)
不寿戈(戟)
青铜鸠杖的跽坐人形镦
壁龛内出土陶罐和陶豆国字山墓葬的发掘为构建和完善江西地区两周时期考古学文化序列谱系提供了关键性资料,同时为筑卫城城址的最终定性及探讨清江盆地两周时期聚落布局和社会结构打下了坚实的基础。
乐器架立柱和器座
鎏金铜剑柄除了突出的越文化因素,国字山墓葬还有相当数量的楚文化因素和群舒文化因素,体现出多种文化因素交融共存的特征,对于研究作为 “吴头楚尾”的江西地区东周时期的吴越楚关系、政治格局演变和“中华文明多元一体”进程等具有极为重要学术价值。
玉龙
玉凤
玉龙凤
出土的陶瓷器原标题:《江西一地重大发现!》

