南城都汇43套“跑道房”1.7万入市,比同小区二手房低1万
以下文章来源于成都商报房产发布 ,作者陈齐美
成都商报房产发布.
成都最权威、最专业、最及时的房产资讯平台
传言许久的“南城都汇即将取证”,终于在昨天被证实!但与许多人的预期大相径庭的是,本批次卖的,是南城都汇6期剩余最后一栋——12号楼的43套房源。
# 1
6期楼王入市,户型有点奇葩
今年5月28日,南城都汇8期山河玖璋取得预售证,推出372套清水房源,清水单价15527元/㎡。与之不同的是,昨天取证的是南城都汇6期的“楼王”,12号楼43套房源,面积为144㎡-217㎡,均价17378元/㎡,并且是现房销售。这是继2016年之后,南城都汇6期时隔5年的再度入市。
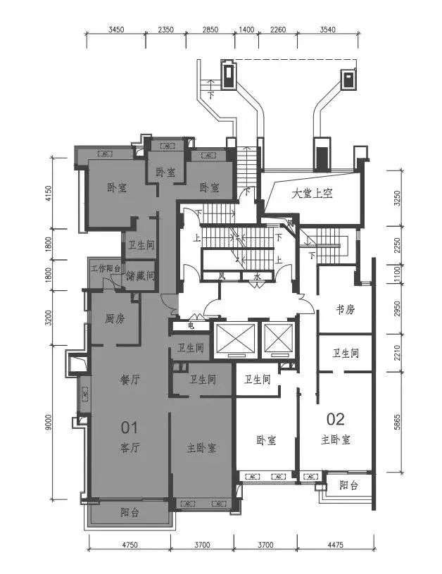
从户型来看,这一面积段更适合居住,但狭长的户型布局,实际的空间感并不算好,2t2户布局,客餐厅是开间4.75米的竖厅,设计了3.5室,过道狭长,被部分网友誉为“跑道房”。
↑建面约149㎡户型
↑建面约178㎡户型从价格来看,1.7万左右的清水单价,总价250万左右,比项目前期的二手房单价低出不少——发哥在贝壳APP上看到,目前南城都汇前期二手房挂牌单价在2.6万-3.2万/㎡不等,从性价比来看,价格依旧很香。
点这里看新批次房源信息
↓↓↓
# 2
地段香,周边各项资源密集
南城都汇,昔日的南三环一霸。围绕着金融城-市一医院一带,几乎有一半都是南城都汇的项目,也正是在这里,聚集着城南丰富的生活配套:项目位于高新区金融城板块,在地铁5号线石羊立交站、市一医院站,以及地铁1号线高新站之间。
项目位置这里除了地铁线路密集外,商业包括了仁和新城购物中心、悠方、九方、新街里等,还有成都市第一医院作为医疗配套,地块旁边就是成都七中初中(锦城校区),各项资源完备。更值得一提的是,在今年最新的学校划片中,这一项目的学区划在了高新五区,这也是高新区目前关注度最高的学区板块。

附近商业配套# 3
仅43套房源,谁能买到?
从价格、地段来看,这批次的南城都汇无疑很香,但摆在眼前的现实是,仅43套房源,谁能买到?
我们盘点了一下去年底以来入市的高新南网红盘报名情况,如果按照43套房源3倍熔断来算,最终将有129户进入摇号池。
万科公园五号上批次房源,有6户棚改家庭最终参与摇号,而无房129号,则是社保时长达到41个月的刚一资格;价格较高的公园五号或许可参考性并不强,对比今年5月取证的南城都汇8期山河玖璋或许更具参考性:最终,山河玖璋有22户棚改家庭参与摇号,无房的129号最终熔断在社保时长达到133个月的无房家庭。
由此看来,社保十年之久的高新区刚需,或许这批次有机会。
不过,本批次没有太大希望的购房者也无需太着急,从往年的情况来看,年底的红盘集中入市是常态。准备好,后期还有一大波红盘在路上!
来源:成都商报房产发布
原标题:《南城都汇43套“跑道房”1.7万入市,比同小区二手房低1万》

