【金小博说】岳飞的军用水壶你见过么?盛的究竟是水还是酒?
在开撩岳飞的军用水壶之前,金小博先来个自问自答——Q:若问长三角一带最常见的出土器物是什么?
A:“韩瓶”必定位居前列。
Q:何谓韩瓶呢?
A:此“韩”来自岳飞的顶头上司韩世忠,遥想当年,韩世忠统领兵军在江南一带抗金,所到之处,留下了大量物品。而其中,被现代人们发现最多的,就是在古河道清淤,或古水井、古墓葬的发掘中,最常见的一种瓶子。这种瓶子制作粗糙、浑身凸棱、有釉或者没釉,被后人称作韩瓶。
韩瓶出土数量太多了,甚至农田翻整的过程中,都有可能发现其踪迹。但与韩世忠一同抗金的,于后世传奇之名气更大的是岳飞。所以也有人把这瓶子叫“岳瓶”。不管是姓什么的瓶,今天金小博就跟你来聊一下这个瓶子的前世今生。
那年、那瓶、那些事这种瓶子不管是韩家军用,还是岳家军用,肯定是大部分是军品。也就是今天我们说的军用水壶。至于里面盛的是水还是酒,得看个人心情。
韩世忠像与岳飞像韩世忠,字良臣,自号清凉居士。延安(今陕西省绥德县)人,南宋名将、词人,民族英雄,与岳飞、张俊、刘光世合称"中兴四将"。韩世忠治军严整,所部号称"韩家军",与"岳家军"齐名,在抗击西夏和金国的战争中为南宋立下了汗马功劳,对兵器设计独具匠心,曾改进克敌弓、连锁甲等武器,同时根据自己的作战经验,提出了骑马跳涧、洞靶射箭等作战方法。
1、“韩瓶”说的相关依据
证据一
根据《江阴县志》及《常昭合志》的记载,韩世忠的驻军主要分布在江苏江阴至常熟福山一带,今天发现韩瓶的地方与当年韩世忠驻军的地方基本一致;
证据二
史书记载,上海西郊的封浜镇(今江桥镇)曾是韩世忠的驻军之地,1977年的时候也出土过一批韩瓶,从而印证的史书的记载;
韩瓶
这种韩瓶韩世忠及其部队一定没有用过
证据三
民国著名史学家邓之诚所著《骨董琐记》记述:“康熙丁亥,有渔人掘得瓷罂数百……或谓此韩瓶也,韩蓟王所遗,得者遂珍之。”这是目前可见的与韩瓶有关的较早的文字记录;
证据四
上海青浦县青龙镇一个地势较高的高台地区出土了大量陶瓶,当地人称此地为“酒瓶山”或“韩瓶山”。相传是南宋韩世忠曾在此地驻军抗金,以酒肉犒赏三军后丢弃的酒瓶;
证据五
2002年在江苏丹徒镇江发现一座宋代石室墓①,墓中出土韩瓶一只,还有打仗用的石弹数枚。
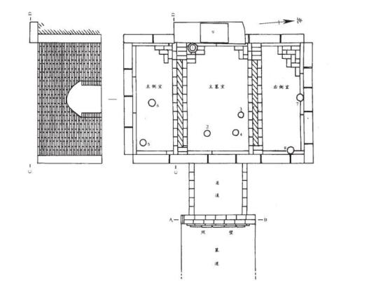
岳超墓平面图整个墓葬形制完整,分为墓道、照壁、甬道主墓室和两个侧墓室,面积约18㎡,标号为1的位置为韩瓶,你找到在哪儿了吗?
出土的墓志具有很高的史料价值,表明墓主的身份为死后追封为清远军节度使的南宋抗金将领岳超。根据墓志记载,“建炎二年,揆忠训郎,擢中军副将,往平山东河北盗,还,捍御庆元府,从通义王韩世忠追袭金人及扬州……”,表明了墓主岳超曾经跟随韩世忠抗击金兵这件事。宋墓中生活气息浓厚,这件韩瓶应该与岳超的生活起居相关。2、“岳瓶”说的相关证据
证据一
江苏泰州地区的百姓通常把这种瓶子叫做“岳瓶”,因为岳飞曾经在泰州抗击金兵,认为是岳飞部队使用的军用水壶(也有酒壶一说);
证据二
清代海陵学者夏荃于《退庵笔记》中描述:“古瓦瓶,长身,两头微锐,浑沱如冬瓜,近瓶口布列四小耳。”又“瓶可容就斗许,长身便于负,四小耳以贯索者,使颇粗重,酒尽则弃之。”据夏荃云:“泰南门柴墟镇南坝桥皆岳鄂王与金人战处,今瓶多出自南郊田野中,他处亡(无)有,其为王军中酒器无疑,当称为岳瓶。”
证据三
背嵬军名称的由来。背嵬军是南宋岳飞统领的一支精锐骑兵部队。南宋时岳飞的岳家军是最为强大的,而他手下的"背嵬军"则是精锐中的精锐,这支部队代表了"岳家军"的精华所在。背嵬军由于战功卓著,位列中国古代五大精锐部队之一。
背嵬军赵彦卫《云麓漫钞》卷七记载:“别置亲随军,谓之背嵬……一入背嵬,诸军统治而下,与之亢礼,犒赏异常。勇健无比,凡有坚敌,遣背嵬军,无不破者……燕北人呼酒瓶为嵬,大将之酒瓶,必令亲信人负之。”意思是说这支队伍因为背着酒瓶而被称为背嵬军,从侧面证明“岳瓶”的这一称呼的可靠性。
这些说法的可信度到底如何,见仁见智。如果非要表态的话,金小博我还是表示一个都不信,传说毕竟只是传说。虽然“韩瓶”说的证据五有一定的参考价值,但是孤证不立,要想知道这个事物的来龙去脉,还需要更多的证据。接下来,金小博要从考古学的学科角度带领大家解读韩瓶(文章还是用韩瓶这一约定俗成的名字,虽然我的内心是极度抗拒的……)What——什么是韩瓶
先来带大家看一组图片,睁大眼睛哦~
上图中哪个/哪些是韩瓶?
请问:上图中哪个/哪些是韩瓶?答案并不简单呀!
通常我们见到的描述是这样:
“有一种不起眼的陶瓶,其制作粗糙,瓶体可见明显轮制痕迹,瓶身内外施青灰色釉,肩部有四系。陶瓶大小不等,一般高30厘米,口径约6厘米,腹径18厘米左右。”②
“韩瓶是一种外形粗拙修长、小口鼓腹、通体弦纹、平底有系的陶制器物,质地低档,多为就地取材烧制。”③
“韩瓶是一种流行与南宋和元朝时期的瓷瓶,韩瓶外形瘦长,大多高19厘米,最凸处直径10厘米,瓶口径6.3厘米,是当时军队士兵取水的工具,其功能相当于现在的军用水壶……”(360百科词条)
抛开这些定义中相互矛盾的地方,根据以上定义,再给一次机会:上图中哪个/哪些是韩瓶?
现在我们从上到下、从左到右,一一揭晓这些都是什么。
第一行第一个:天威军官瓶④。名字与韩瓶有异曲同工之处,但是看大图会发现,瓶身清清楚楚写着“天威军官瓶”五个大字!按照考古器物的命名方法之一自名法,这种瓶子叫做“天威军官瓶”没有问题。
天威军官瓶“天威军”最早见于《宋史•地理志》“(河北)西路,府四:真定、中山、信德、庆元;州九:相、濬、怀、卫、洺、深、磁、祁、保;军六:天威、北平、安肃、永宁、广信、顺安……”载明河北西路有天威军等六军,天威军属井陉县管辖。至于“官”字,可以有两种理解:一种可以理解为是供天威军军官们使用的;一种也可以理解为是供天威军公家共同使用的器物。
第一行第二个:“仁和馆”四系瓶⑤。
“仁和馆”四系瓶这类四系瓶主要流行地区为河北、山东,其次为黑龙江、北京、内蒙古和辽宁,流行时代在金、元时期,且存在金代多出于关外,而元代多见于关内的现象。彭城窑是四系瓶的主要生产窑口之一,而且是目前发现的唯一生产这类带“馆”铭的四系瓶窑口。据有关学者推测,“仁和馆”铭四系瓶为馆驿用具。
第一行第三个:鸡腿瓶⑥。鸡腿瓶是辽金时期十分有特色的一种器物,主要用途更大程度上为酒器,多插入酒架上放置。随葬有鸡腿瓶的墓主大多具有一定的政治地位或经济实力,可谓是非富即贵。
辽宁省博物馆馆藏鸡腿瓶一组在辽代,鸡腿瓶所代表的民族性也更为鲜明,这种象征性在之后的朝代大大减弱,随葬鸡腿瓶逐渐变成反应社会习俗的标志。有学者推测,鸡腿瓶或为梅瓶的造型来源。
墓葬壁画中的鸡腿瓶该壁画出自山西陵川玉泉金代壁画墓,图中有一类似须弥座的酒架,上面放置两个鸡腿壶,生动形象地展示了当年贵族们的生活,鸡腿壶的使用方式可以从图中窥见一斑。
第二行的三个其实都是韩瓶,惊不惊喜意不意外?你回答对了吗?
到底什么是韩瓶,其实上面的三条定义都略有瑕疵,尤其是360百科词条,可以作为纠错的模板了。这里我们要拎一拎重点:
首先,韩瓶是一种陶器。这是它区分于第一行三个器物的最主要的特征。它的胎类似于缸的胎。如下图这件韩瓶,下半部分因为没有釉,我们可以直接看到它的胎呈现一种紫褐色。
韩瓶其次,韩瓶通体有弦纹,有的文章也称作是瓦垄纹或者瓦楞纹。韩瓶器型瘦长,颈部有的微束,有的深束;腹部有的为深直腹,有的为弧腹。
最后,不管有没有系,口大还是口小,平底还是微凹底,有没有釉,不构成判断是不是韩瓶的依据。韩瓶沿用时间很长,究竟有多长先埋个伏笔,总之形态有变化是再正常不过的事儿了。
不过,行文至此,金小博必须承认今天做了回标题党。用岳飞的名义把大家拐进来,实际是在进行文博考古的科普。Where & When——韩瓶的分布范围及使用时代韩瓶号称江浙沪分布最广泛的器物之一,到底有多广泛呢?据金小博不完全统计,从下表中可窥见一二。
表一 江浙沪地区出土韩瓶最不完全统计表
备注:上海青浦县青龙镇——今青浦区白鹤镇青龙村时间有限,金小博就搜集到了这么多相对明确时代的韩瓶,还有一些时代表述不够明确的,见下表二。
表二 那些时代不够明确的韩瓶
这些是一些已经发表出来的,还有一些采集到或者未发表的考古报告和简报尚未发表出来的,数量也不在少数,毕竟金小博第一次见到韩瓶的遗址的发掘报告还在整理中。
金小博韩瓶初相见求忽略青葱岁月犯下的错,毕竟这两个韩瓶是无辜的……
虽然只是一次不够全面的收集,我们还是惊奇的发现以下几点:
· 北宋已有韩瓶,时间早在韩世忠或者岳飞之前;
· 韩瓶使用的时间较长,从北宋到明王朝,使用时间长达五六百年之久;
· 使用范围远比想象的更大!
所以,韩瓶与韩世忠或岳飞是什么关系,各位心理都有答案了吧!
那么,不同时代的韩瓶有什么样的特征?韩瓶的分布范围经历的怎样的动态变化过程?装牛油的韩瓶有怎么样的故事?想知道怎么鉴定下图中韩瓶的时代吗?请听下回分解。
韩瓶,都是韩瓶……
参考资料1、镇江博物馆:《丹徒左湖南宋岳超墓发掘简报》,《东南文化》,2004(1),32-35
2、徐伟、茅威:《岳瓶与背嵬军——一段被历史尘封的记忆》,《文物鉴定与鉴赏》,2008(6上),58
3、高新天:《韩瓶新考》,《东南文化》,2005(6),60
4、冯先铭:《宋“天威军官瓶”考》,《故宫博物院院刊》,1995(S1),52-54
5、陈杰:《从“仁和馆”铭四系瓶谈起——兼谈四系瓶的几个问题》,《北方文物》,2003(3),44-51
6、李彬彬:《辽金时期鸡腿瓶研究》,辽宁师范大学,2020
原标题:《【金小博说】岳飞的军用水壶你见过么?盛的究竟是水还是酒?》

