幽雅的淮海中路西段,梧桐树影婆娑。在高安路口,有一栋体量巨大、造型别致的建筑引人注目。
当清晨的一缕阳光透过连接两幢高层的巨大玻璃幕墙,照射到大门厅的磨光花岗石地坪上,人群通过设于淮海中路的大门,经过圆形广场,沿着大楼梯拾级而上。那些带着强烈的求知欲望以及为寻找解决疑难间题答案的人们,穿过大门厅,投入知识殿堂的怀抱。
这里就是1996年12月20日落成对外开放的上海图书馆新馆。12月20日是它的“24岁生日”。

01
多数上海市民对人民广场西侧钟楼下的老图书馆记忆犹新,那是1949年前的上海跑马总会大楼,1952年改建为上海图书馆。
1949年8月,上海解放不久,在陈毅市长的直接关心下,成立上海市文物管理委员会(简称文管会),积极开展对文物、图书的接管、征集、收购和整理工作。1950年7月,文管会成立图书整理处和文物整理处,着手筹建上海图书馆和上海博物馆。
1951年初,文管会决定成立图书馆筹备委员会,聘请徐森玉、顾颉刚、顾廷龙、李芳馥、王育伊、刘汝醴为委员,李芳馥为召集人。1951年2月,文管会将原上海跑马总会大楼作为上海图书馆和上海博物馆馆舍,陈毅市长还欣然题写馆名。1952年7月22日,上海图书馆在南京西路325号建成开馆,李芳馥为馆长。
1956年11月,市文化局根据军管会命令,接管徐家汇耶稣会神学院藏书楼(亦称徐家汇天主堂藏书楼),经过整理充实,成为上海图书馆的组成部分——徐家汇藏书楼,于1957年1月开放阅览。在此以前,上海图书馆还接收原亚洲文会图书馆的藏书。

1958年10月,市文化局经过对当时公共图书馆事业工作方针和体制的研究,经市委宣传部同意,决定将上海图书馆、上海市科学技术图书馆、上海市报刊图书馆、上海市历史文献图书馆四馆合并,当时也称“四馆统一”。1960年11月,上海市少年儿童图书馆并入上海图书馆作为上海图书馆的一部分,对外仍称上海市少年儿童图书馆。
1976年10月,“文革”结束后,上海图书馆一方面进行整顿,对过去行之有效的工作进行恢复和加强,另一方面适应形势要求,开拓一些新业务。为改善办馆条件,1982年在南京西路现址扩建面积为4000平方米的2号楼,1988年又在龙吴路建成1万平方米的书库,在一定程度上缓和阅览室和书库空间日趋紧张的矛盾。

图片来源 | 澎湃新闻
然而随着改革开放步伐的不断提速,市民对知识的渴望与日俱增。位于南京西路的图书馆大门口,每日清晨,特别是节假日,有大批读者排队等候入馆,借书证一卡难求,阅览室更是一席难得。为了能使上海图书馆更好地适应社会主义现代化建设以及改革开放对知识结构更新、扩充的需要,经国家计委批准,上海市人民政府决定扩建上海图书馆。1983年6月,市文化局成立上海图书馆扩建新馆工程办公室。
02
1984年3月,经多方考察,市政府决定将淮海中路1525号上海乳品二厂和乳品机械厂原址作为新馆建设基地。
说到这个地块,也是颇有历史底蕴。此处在20世纪初便被西侨购入,作为奶牛养殖场。有资料显示,该公司最初为法商经营,得名于场主法国人Charles Culty,早期共有7头奶牛,专供驻沪法军,并雇佣2名日本人做挤奶工。此后因故(此间说法不一,有说是经营不善,也有说是Charles Culty回国参加一战),公司转让给英方,但保留了公司原名,中文名称为“可的”。此后公司因掌握奶牛饲养和防疫的先进知识,且设备先进,卫生条件良好,因此1925年时就获得工部局第一批A字执照。




资料来源 | 上海社科院出版社2008年修订版
20世纪30年代,可的公司又引进机械化挤奶设备。至1935年时,可的已成为上海乳品业的龙头老大,并在香港注册上市。公司奶牛场配备现代化的消毒设备、自动洗瓶机、冷气储奶室,牛棚有11处,牧场15亩,奶牛543头,且多为良种奶牛,每日产奶9000余磅,订户达6000户。上海解放后,位于淮海中路的场地被人民政府接受,后成为上海乳品二厂及乳品机械厂所在地。

图片来源 | 上海测绘院 天地图 上海
该地块20世纪80年代中后期被划为上海图书馆新馆建设用地,一番波折后,开始进入前期准备阶段。1986年初,上海图书馆扩建新馆工程办公室改名为上海图书馆新馆工程筹建处,直属市文化局。经过可行性研究、编制计划任务书和设计任务书等前期工作,从1986年初起进入设计阶段。
1985年底,上海市建委与文化局发出“关于上海图书馆新馆工程征集方案设计竞赛的通知”。被邀请的设计单位有11家,至截止日,有7家设计单位报送设计竞赛方案。如今,设计竞赛已是司空见惯的,但在20世纪80年代中期并不多见,上图新馆设计竞赛应该说是当时国内一次较高水准的建筑设计竞赛,参赛单位投入很大力量和热请。


在众多设计方案的基础上,经过反复比较、调整、综合优化,1987年初,在建委主持下,上海图书馆新馆举行A、B方案讨论会。会议肯定了A方案在总体布局、两个出入广场等方面做法,并提出进一步改善淮海中路旁的阅览室、进一步修改立面造型的意见。此后又进行了两轮修改方案,其间在听取内地及香港专家意见的同时也听取日本同行意见,征询国际图联、荷兰鹿特丹图书馆馆长舒茨先生的意见,修改方案平面关系更趋完善,修改的重点已侧重于立面造型方面,但在1988年底送审方案通过后,由于经济原因工程设计停顿整整两年。
1990年11月,新馆工程筹建处改由上海图书馆领导。当年,时任中共上海市委书记朱镕基、市委副书记陈至立以及市委宣传部、市文化局、市计委有关领导都到现场视察,听取关于新馆筹建进展情况的汇报。
至1991年4月,经过调整,一个集思广益、体现智慧结晶的新馆方案终于确定。当时,市委要求筹建工作要抓紧进行,并提出“两年准备,三年建成”的要求。市政府把新馆建设列为“八五期间”重大工程项目之一。按此要求,上海图书馆与设计单位——上海民用建筑设计院及其他有关部门和单位进一步密切协作,再次调整和改进设计方案。


1991年4月,上图新馆转入扩初设计。1992年第二季度开始进行施工图设计。1993年3月25日举行了新馆工程奠基典礼,同年9月1日正式打下第一根工程桩。
03
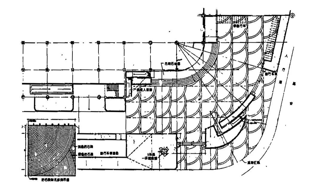
上海图书馆新馆建筑面积8万平方米。内部布局合理,具有现代风格。新馆地处淮海中路高安路口(东南角),占地3.1公顷。建筑分主楼和副楼两部分。主楼由两幢塔型高层和裙房组成。两幢塔型高层分别是地下1层、地上11层和24层,高度为55.6米和106米。主楼分A、B、C、D4个区。A区为近代文献、古籍、缩微资料等部门的阅览室和书库,以及行政管理部门;B区为门厅和多功能厅;C区为中外文图书阅览室和总书库、计算机房、采编等部门;D区为设备用房、展览厅、学术活动室、声像资料视听和编录用房、讲演厅。副楼为生活设施用房。新馆内部流程与布局合理,静、闹区划分明确。
新馆实行大幅度开架,大开间阅览,极大地方便读者,能满足各种层次读者的需求。新馆书库设计藏书量为1320万册,设置各类阅览室38个,研究阅览室24间,声像资料研究室8间。阅览座位3036个。其中,中外文图书阅览室23个,开架图书80万册;古籍和近代文献阅览室11个,开架古籍1万册;30万册中外文图书开架外借处1个;各类型声像视听室4个。多数阅览室的面积在500~700平方米以上。
为了改善新馆的业务工作手段,提高科学管理水平和服务效率,充分发挥现代化图书馆多项功能的作用,新馆配备了当时各种先进的设备和设施。如上海图书馆新馆计算机自动化管理系统,包括图书馆业务管理系统,图书存储和全文检索系统、二次文献生成和检索系统、多媒体信息管理系统以及图书馆行政管理系统等。在C区高层书库,配有先进的电脑控制书梯和自走小车,以缩短读者等候时间,提高图书馆服务效率。新馆采用全空调,其中缩微库、珍本库、计算机中心采用恒温恒湿系统,其用房采用中央集中空调系统,并采用先进的煤气冷暖房技术。防灾安全主要分为报警灭火和防盗两大系统。防盗系统设有防盗报警器和中央监控系统;此外,为方便残疾读者新馆特作无障碍设计,设置残疾读者专用的坡道、电梯、厕所、专座。
上图新馆主要出入口在淮海中路,此处建筑平面作台阶式后退,主出入口退离淮海中路道路红线50米,形成城市开放空间“知识广场”,这种设计在当时是极具超前意识的。考虑到广场上的人车分离、突出主要出入口、增加入口空间层次,在广场中央以高柱廊构架围台成一个26米直径的圆形步行区域,车可从高柱廊外经过。
柱廊由12根7米高的长方柱向心围合。高柱廊构架的设置在城市空间中进一步突出了主入口,也通过自身的尺度使广场空间成为建筑与城市之间的过渡,枉廊、曲梁采用与主楼外墙相同的材料,柱子腾空而立,为偏西北向的知识广场增加了光影变化,也平添了文化气息。有内涵的铺地图案新颖别致,在靠人行道一侧有宽阔的台阶、坡道与人行道相连。人们拾级而上进入广场会感受到和谐、素雅的文化氛围。



另一处城市开放空间是高安路口的西入口——“智慧广场”,这是人们进出上图新馆视听中心、展览厅、音乐欣赏室、800座报告厅与学术活动室的出入口。“智慧广场”以涌泉水池、踏步、坡道分为两个层面,以适应大量人流集散,也可避免与人行道的相互干扰,并显示其活跃氛围。广场草地中放置高度为6米的不锈钢抽象雕塑“智慧树”。
新馆外墙底部采用花岗石毛石墙,一层以上墙面贴以米白色面砖与异形砖,不锈钢落水管巧妙地构饰立面线条。建筑造型稳重,简洁典雅,吸收了上海近代建筑文化的特点,具有时代气息。
建筑群周围有近万平方米的绿化,营造出都市中难得的宁静。2004年,罗丹“思想者”雕像落户上图新馆外的绿地中,可以说是再合适不过了,阅览室距离窗外的淮海中路达20~50米,加上密闭的隔音窗门,可最大限度地降低室内噪音。

图片来源 | 澎湃新闻

图片摄影 | 郭一江
经过各方通力协作,全力奋战,1996年12月20日,上海图书馆新馆门前知识广场上彩旗招展,鼓号阵阵,人头簇动,欢声笑语,1000余名中外图书馆界同行共襄盛举,庆祝上海图书馆新馆落成开放。94岁高龄的老馆长顾廷龙,专程从北京赶来。当日,顾老的个展也同时开幕。



在嘉宾的行列里,还有舒茨老先生依然矫健的身影,这位年近七十的荷兰图书馆专家,自1986年担任上海图书馆新馆建设顾问以来,不计辛劳,奔走于欧亚大陆之间,为上图新馆建设出谋划策,牵线搭桥,提供世界图书馆界最新发展动态。国际图书馆联合会秘书长福赫德先生也来了,这是他一年中再次来到上海,同年8月来沪时,上图新馆还是一个机械轰鸣、泥尘遍地的建筑工地。仅4个月后,出现在他眼前的新上图,已是一座宏伟的知识宫殿了。
1990年至1999年,是上海新标志性建筑的繁荣期。1990年实施浦东开发、开放战略,1992年中共十四大提出“尽快把上海建成国际经济、金融、贸易中心之一”的战略决策,上海获得前所未有的历史机遇。一批展示现代化国际大都市面貌的标志性建筑拔地而起,上海逐步从传统的工商业城市转向国际经济中心城市,城市能级显著提升。
时任上海市市长朱镕基在《上海建设(1986~1990)》序言中写到:“我相信,经过今后十年的精心营造,一批具有时代特色、气势恢宏的崭新建筑,将成为上海的新标志,并和半个多世纪来一直是上海城市象征的外滩建筑群相呼应、相映衬、相媲美,使我们这个国际性城市更富有魅力。”而上海图书馆新馆就是其中的杰出代表,并在1999年获当代中国建筑艺术代表作称号和新中国50年上海经典建筑金奖。


图片摄影 | 陈龙
后记
2017年9月27日,上海图书馆东馆在浦东花木地区动工建设。2019年9月20日实现主体钢结构封顶。上海图书馆东馆由上海图书馆、上海通志馆、上海市社会科学界联合会联合立项,是上海市委、市政府着眼社会主义国际文化大都市建设做出的重大决策,也是“十三五”时期上海文化设施建设的重大项目。
作为“馆中馆”的上海通志馆新馆,就位于上海图书馆东馆四楼。上海通志馆将以“五馆合一”为理念,打造集查询、阅览、收藏一体的现代图书馆;利用多媒体、高科技展陈上海地情的现代展示馆;将地方志资源变为普及读物、文创产品的开发利用馆;培养爱党、爱国、爱乡情怀的学习教育馆;培训方志人才队伍、普及地情知识的人才培养馆。
上海通志馆将与上海图书馆、上海社联进行资源整合,通过协同创新产生新的优势,打造上海最具代表性、权威性、标志性的地情文化中心。

资料来源 | 文汇报

图片摄影 | 邢千里
上图东馆预计将于2021年12月开放运营。作为上图知识殿堂的延续,上海图书馆东馆将成为一个激扬智慧、交流创新、共享包容的“知识交流共同体”,一个市民乐享其中的“书房、客厅、工作室”,一个培育提升广大读者人文涵养、艺术修养、信息素养、科学精神和创新意识的公共空间。一个集图书文献信息资源、科技创新研发资源、社科智库研究资源、上海地情研究资源为一体的“互联网+”时代全媒体复合型图书馆。END
参考资料
《上海通志》《上海图书馆事业志》《上海名建筑志》
《上海建筑施工志》等
张皆正:“上海图书馆新馆”(《建筑学报》1997年5月)
部分内容源自上海图书馆官网
部分图片源自网络
“申知沪志”小组 诚意奉献
原标题:《24周年! | 上图新馆落成开馆记》